De Wittstraat 4
1792 BP OUDESCHILD
Deze keurige, vrijstaande woning bevindt zich op een perceel eigen grond van 395 m2 in een rustige woonomgeving in Oudeschild. Het huis biedt dankzij de royale aanbouw een uitstekende mogelijkheid voor werken aan huis of een praktijkruimte. Met een slaapkamer en badkamer op de begane grond is gelijkvloers wonen hier ook een optie. De woning (energielabel B) is in de afgelopen jaren grondig gerenoveerd/gemoderniseerd, heeft een frisse uitstraling en is voorzien van kunststof kozijnen (HR++ beglazing). Twaalf zonnepanelen zorgen voor de levering van groene stroom.
Op 500 meter lopen is het kleinschalige centrum van het dorp, met een aantal winkels en een supermarkt. Ook de haven en de Waddenzeedijk zijn in de directe omgeving gelegen.
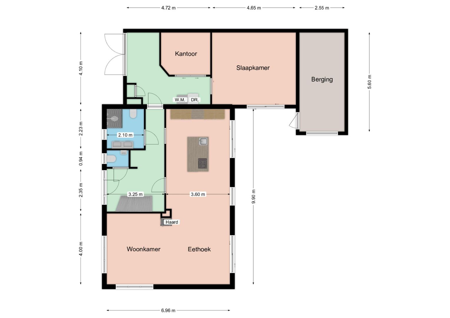
Indeling: entree in hal met toegang tot de woonkamer/keuken, badkamer, toiletruimte en trap naar de bovenverdieping. De straatgerichte woonkamer is gezellig ingericht met een houtkachel. Aan de andere zijde is de eethoek met een schuifpui naar de tuin.
De ruime keuken is voorzien van een kookeiland (met 5-pits inductiekookplaat, afzuigkap en spoelbak), 2x koel/vrieskast, 2x oven en vaatwasser. Ook hier is een schuifpui naar de tuin.
De nette badkamer (begane grond, met vloerverwarming) is voorzien van een douche, dubbele wastafel en vrijdragend toilet. In de separate toiletruimte is het tweede toilet en een fonteintje.
De aanbouw maakt het huis aanzienlijk groter en is zeker een meerwaarde voor het woongenot. In de ruime 2-persoons slaapkamer is een schuifpui naar de tuin. In de tussenhal zijn de aansluitingen voor de wasmachine/droger en hier is ook de kantoorruimte.
Op de 1e verdieping zijn twee keurige slaapkamers. Eén van de slaapkamers heeft een ingebouwde kastenwand en de derde slaapkamer is voorzien van een wastafel.
De tuin heeft een aangename grootte, wat ervoor zorgt dat u hier heerlijk kunt loungen. De inpandige berging (ca 14 m2, v.v. elektra) is buitenom bereikbaar. Op eigen terrein is voldoende ruimte voor het parkeren van twee auto’s.
Heeft u interesse in deze vrijstaande woning? Neem dan gerust contact met ons op om een bezichtiging in te plannen! De oplevering zal in overleg geschieden.
Kenmerken
| Type | Vrijstaande woning |
| Bouwjaar | 1988 |
| Oplevering | in overleg |
| Perceeloppervlakte | 395m2 |
| Gebruiksopp. wonen | 146m2 |
| Overige inpandige ruimte | 14m2 |
| Inhoud | 525m3 |
| Energielabel | B |
| Slaapkamers | 3 |
| Status | Beschikbaar |
| Preis | € 605.000 k.k. |
| Woontype | Permanent |
Foto's
Interessiert?
Wenden Sie sich bitte:
Kortekaas & Kooijman
makelaars en taxateurs
Interessiert?
Bitte wenden Sie sich an Kortekaas & Kooijman makelaars en taxateurs.
Interessiert?
Wenden Sie sich bitte:
Kortekaas & Kooijman
makelaars en taxateurs

