Orchismient 8 - X
1796 AX DE KOOG
Wonen waar het altijd als vakantie voelt!
Op loopafstand van het Texelse bos, strand en duinen (Nationaal park Duinen van Texel) en op een steenworp afstand van het gezellige centrum van De Koog vindt u deze gelijkvloerse woning op 540 m2 eigen grond met de mogelijkheid voor permanente óf recreatieve bewoning. Een ideale plek voor wie rust, natuur en comfort wil combineren.
Geschikt voor eigen gebruik, recreatieve verhuur of een combinatie van beide.
De woning is in 2005 ingrijpend gerenoveerd en geheel v.v. vloerverwarming. In 2022 is de woning v.v. nieuwe beglazing (HR++) en in 2023 is een lucht/water warmtepomp geplaatst.
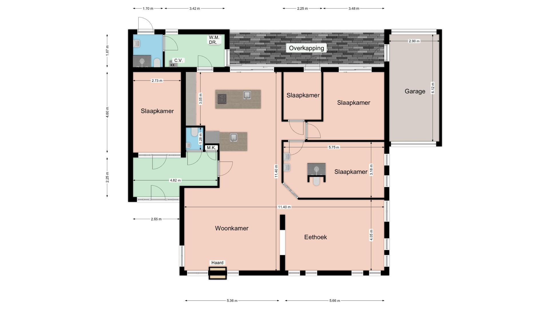
Indeling: de entree is in de hal met toegang tot de woonkamer/keuken, eerste slaapkamer (welke tevens kan worden ingericht als hobbykamer) en de toiletruimte.
De lichte woonkamer met leisteenvloer is speels ingedeeld met twee vloeren op verschillende niveaus (ca. 15 cm verschil) en beschikt over twee gasgestookte haarden. De grote raampartijen zorgen voor veel natuurlijk licht en een prettig gevoel van ruimte.
De moderne, verrassend ruime keuken is een echte blikvanger en voorzien van een kookeiland. In de keuken treft u een dubbele spoelbak, een inductiekookplaat, heteluchtoven, magnetron, vaatwasser en een Amerikaanse koelkast. Een schuifpui geeft toegang tot de tuin.
In de bijkeuken is de opstelling van de hybride warmtepomp/cv-ketel (2023) en aansluitingen voor een wasmachine/droger. Hier bevindt zich tevens een badkamer met douche, toilet en wastafel.
De hoofdslaapkamer is uitgerust met een eigen luxe badkamer met dubbele wastafel, douche, toilet en een stijlvolle wand van glazen bouwstenen. De derde slaapkamer is eveneens licht en comfortabel ingericht. In de vierde, kleinere slaapkamer is een deur naar de tuin.
Voor en achter de woning is een verzorgd aangelegde tuin, voorzien van een ruim terras, bloemenperkjes en een tuinhuis met overkapping waar u het hele jaar door beschut buiten kunt zitten. De ruime inpandige garage beschikt zowel aan de voor- als achterzijde over garagedeuren.
Heeft u interesse in deze woning? Neem dan gerust contact met ons op om een bezichtiging in te plannen! De oplevering zal in overleg geschieden.
Kenmerken
| Type | Vrijstaande woning |
| Bouwjaar | 1982 |
| Oplevering | in overleg |
| Perceeloppervlakte | 540m2 |
| Gebruiksopp. wonen | 158m2 |
| Overige inpandige ruimte | 18m2 |
| Gebouwgebonden buitenruimte | 19m2 |
| Externe bergruimte | 8m2 |
| Inhoud | 564m3 |
| Energielabel | B |
| Slaapkamers | 4 |
| Status | Beschikbaar |
| Preis | € 945.000 k.k. |
| Woontype | Recreatie |
Foto's
Plattegrond
Interessiert?
Wenden Sie sich bitte:
Kortekaas & Kooijman
makelaars en taxateurs
Interessiert?
Bitte wenden Sie sich an Kortekaas & Kooijman makelaars en taxateurs.
Interessiert?
Wenden Sie sich bitte:
Kortekaas & Kooijman
makelaars en taxateurs

