Hoornderweg 18
1791 PN DEN BURG
Gelegen tussen de dorpen Den Burg en Den Hoorn, bevindt zich deze karakteristieke Texelse stolpboerderij (gemeentelijk monument) met architectonisch kantoorgebouw en een ruime schuur op een perceel eigen grond van 20.130 m2 (!) Een bijzondere kans voor liefhebbers van wonen op de ruimte en tussen de landerijen. Voorzieningen zoals winkels, cafés en restaurants, evenals scholen en (sport)verenigingen bevinden zich op ca. 1,5km afstand in Den Burg, het grootste dorp op het Waddeneiland. De TESO-veerdienst is gelegen op enkele minuten rijden.
In de directe omgeving treft u het geliefde natuurgebied De Hoge Berg, met kronkelende weggetjes, schapenboeten en authentieke tuunwallen. Nationaal park Duinen van Texel is ook niet bepaald ver weg: op ca. 4 km afstand is het Dennenbos, met daarachter de duinen en het kilometerslange Noordzeestrand.
Dit is een interessante locatie om wonen op Texel te combineren met de uitoefening van een beroep of een kleinschalige bedrijfsmatige activiteit aan huis. Hiervoor is de huidige bestemming ‘Bedrijf – Vab’ uitermate geschikt. Zie voor de bepalingen hiervan de regels in het bestemmingsplan.
Een ruim perceel eigen grond met meerdere gebouwen en een eigen oprijlaan, zoals u dat altijd al heeft gedroomd. Hier treft u een stolpboerderij, een kantoorruimte, een schuur en een bijgebouw.
Stolpboerderij
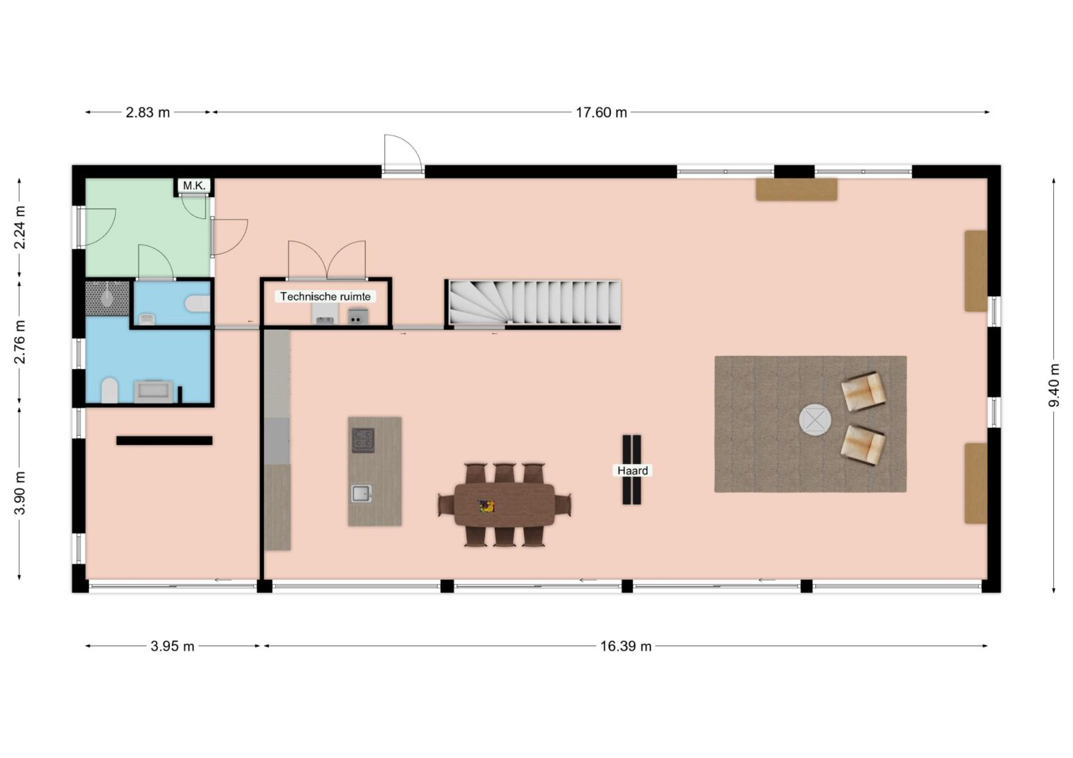
Aan de voorzijde van het perceel bevindt zich de stolpboerderij (bouwjaar 1916 / G.O. ca. 193 m2), met op de begane grond de woonkamer en de keuken en een behoorlijk grote berg/opslag ruimte (ca. 90 m2). In de keuken is een trap naar de koele (wijn)kelder. De gemoderniseerde bovenverdieping telt drie slaapkamers en een keurige, vernieuwde badkamer.
Kenmerkend voor de stolpboerderij zijn de grote boerderijdeuren aan de voorzijde en het sierlijk metselwerk rond de vensters, maar ook zeker het rietgedekte, piramidevormige dak. Het geïsoleerde dak is compleet vernieuwd en o.a. voorzien van nieuwe dakpannen, nieuw riet en nieuwe koperen goten.
Kantoor
Achter de stolp is een luxe, royale kantoorruimte gesitueerd (bouwjaar 2016 / energielabel A+++ / G.O. ca. 265 m2), architectonisch gebouwd, geïnspireerd op een traditionele kapschuur en passend in het landschap. Het dak is afgewerkt met zink en een mooie toevoeging voor het pand zijn de aluminium kozijnen met HR+++ beglazing. Vanbinnen is er gekozen voor een strakke afwerking en er is een prachtige vide!
Op de begane grond treft u een aangename ruimte met een houtkachel en een royale keuken. In het gebouw is een badkamer aanwezig en een separaat toilet. Op de bovenverdieping is ruimte voor meerdere kantoren.
Het pand heeft aan de noordwest zijde grote raampartijen met zicht over de weilanden en in de verte het Dennenbos. Het gebouw wordt verwarmd met een warmtepomp en zowel de begane grond als de verdieping zijn voorzien van vloerverwarming. Brede schuifpuien geven toegang tot het terras, welke zich uitstekend laat lenen om op zonnige dagen van het uitzicht te genieten.
Perceel, schuur en bijgebouw
Op het perceel bevindt zich een ruime schuur (ca. 230 m2) met 77 zonnepanelen evenals een bijgebouw (ca. 50 m2). De schuur biedt volop bergruimte en is uitermate geschikt voor opslag of het stallen van voertuigen. De bijgebouwen maken het tot een bijzonder compleet en veelzijdig geheel, waar wonen, werken en buitenleven op harmonieuze wijze samenkomen. Er is een ruime oprit met parkeergelegenheid voor meerdere auto’s. Hoornderweg 18 is een plek met een verhaal, een thuis met karakter en een object met toekomst. Hier kunt u wonen zoals Texel bedoeld is: omringd door natuur, ruimte en rust.
Heeft u interesse in dit unieke object? Neem dan gerust contact met ons op om een bezichtiging in te plannen! De oplevering zal in overleg geschieden.
Kenmerken
| Type | Vrijstaande woning |
| Bouwjaar | 1916 |
| Oplevering | in overleg |
| Perceeloppervlakte | 20130m2 |
| Gebruiksopp. wonen | 193m2 |
| Overige inpandige ruimte | 95m2 |
| Externe bergruimte | 299m2 |
| Inhoud | 1250m3 |
| Energielabel | G |
| Slaapkamers | 3 |
| Status | Beschikbaar |
| Prijs | € 1.595.000 k.k. |
| Woontype | Permanent |
Foto's
Plattegrond
Interesse?
Neem dan contact op met
Kortekaas & Kooijman
makelaars en taxateurs
Interesse?
Neem dan contact op met Kortekaas & Kooijman makelaars en taxateurs.
Interesse?
Neem dan contact op met
Kortekaas & Kooijman
makelaars en taxateurs

