Kogerweg 151
1791 MJ DEN BURG
Op een prachtige locatie aan de Kogerweg, tussen Den Burg en De Koog, ligt deze vrijstaande woning met garage op een royaal perceel eigen grond van 6.018 m². Het ruime perceel (met bestemming wonen) was voorheen in gebruik als aardbeienplantage, maar het biedt uiteraard ook andere mogelijkheden voor wie op zoek is naar wonen in de natuur op een riant perceel.
De ligging is ideaal: landelijk, tussen de Texelse weilanden, maar toch op ca. 1,5 km afstand van Den Burg, waar winkels, scholen, (sport)verenigingen en andere voorzieningen te vinden zijn. Binnen vijf minuten rijden bent u in het Nationaal Park Duinen van Texel. De slaapkamers en de sanitaire voorzieningen zijn op de begane grond; dit maakt gelijkvloers wonen mogelijk.
Het pand is gedateerd en vraagt om liefdevolle aandacht en modernisering. Dit maakt het een uitstekende kans voor handige kopers of mensen die graag hun eigen stempel willen drukken op een uniek plekje op het eiland.
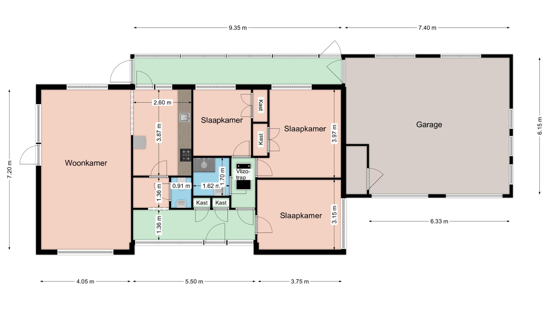
Indeling: entree in hal met toegang tot de woonkamer, keuken, slaapkamers, badkamer (met douche en wastafel) en separate toiletruimte. De woonkamer is gesitueerd aan de zijkant van het huis en er is een deur naar de tuin. In de woonkamer is tevens de eethoek.
De eenvoudige keuken is voorzien van onder andere een spoelbak, kookplaat en afzuigkap.
Het huis heeft drie slaapkamers op de begane grond en twee slaapkamers hebben een ingebouwde kastenwand. Een vlizotrap geeft toegang tot de ruime bergzolder.
Via de serre is er toegang tot de garage. De garage heeft twee roldeuren aan de voorzijde en hier is de opstelling van de cv-ketel.
Het aangenaam ruime perceel geeft veel ruimte en rust en is omringd met een bomensingel. Het landelijke wonen komt hier naar voren: in alle vrijheid uw gang kunnen gaan en heerlijk genieten van het werken in de tuin.
Bent u nieuwsgierig geworden naar deze plek? Neem dan gerust contact met ons op om een bezichtiging in te plannen. De oplevering zal in overleg geschieden.
Kenmerken
| Type | Vrijstaande woning |
| Bouwjaar | 1967 |
| Oplevering | in overleg |
| Perceeloppervlakte | 6018m2 |
| Gebruiksopp. wonen | 94m2 |
| Overige inpandige ruimte | 93m2 |
| Gebouwgebonden buitenruimte | 3m2 |
| Externe bergruimte | 6m2 |
| Inhoud | 700m3 |
| Energielabel | G |
| Slaapkamers | 3 |
| Status | Verkocht onder voorbehoud |
| Prijs | € 625.000 k.k. |
| Woontype | Permanent |
Foto's
Plattegrond
Interesse?
Neem dan contact op met
Kortekaas & Kooijman
makelaars en taxateurs
Interesse?
Neem dan contact op met Kortekaas & Kooijman makelaars en taxateurs.
Interesse?
Neem dan contact op met
Kortekaas & Kooijman
makelaars en taxateurs

