Roggeslootweg 656
1795 HM DE COCKSDORP
Op zoek naar een leuke vakantiebungalow op het zonnige Texel? Deze vrijstaande recreatiewoning bevindt zich op een perceel eigen grond van 345 m2 op bungalowpark De Krim en beschikt over twee badkamers en drie slaapkamers. Met een slaapkamer en sanitaire voorzieningen op de begane grond is gelijkvloers wonen mogelijk. Het huis bevindt zich nabij een wandelpad richting de duinen.
Op het familiepark zijn diverse faciliteiten aanwezig voor jong en oud, zoals een (overdekt)zwemparadijs, een lasergamehal, een speelparadijs, speeltuinen, een indoor midgetgolf en restaurants. Golfbaan de Texelse ligt aangrenzend aan het vakantiepark. Natuurgebieden De Slufter en De Muy evenals de Noordzee zijn in de nabijheid gelegen, maar ook andere praktische voorzieningen zijn binnen handbereik.
Toeristen weten De Krim goed te vinden, wat kan zorgen voor interessante verhuuropbrengsten. De woning is dan ook ingericht voor recreatieve verhuur (in combinatie met eigen gebruik), maar er is geen verhuurverplichting. In de brochure staat een overzicht van de kosten/opbrengsten. De huidige eigenaar heeft de woning verhuurd via bungalowverhuur De Muy. Er is een zwembadovereenkomst met De Krim tot 31-12-2032.
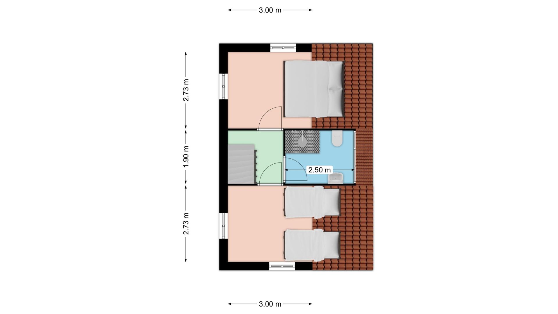
Indeling: entree in hal met toegang tot de woonkamer/keuken, slaapkamer (b.g.) en badkamer (b.g.). De woonkamer beschikt over een sfeervolle haard en er zijn openslaande deuren naar het terras. In de woonkamer is een spiltrap naar de bovenverdieping. Tussen de woonkamer en de keuken is de eethoek.
De keuken heeft een hoekopstelling en is voorzien van spoelbak, 4-pits gaskookplaat, afzuigkap, magnetron, koelkast met vriesvak en vaatwasser. In de bijkeuken is de wasmachine hier is ook de opstelling van de cv-ketel. Verder is hier de meterkast en nog een deur naar de tuin.
Op de begane grond is een 2-persoons slaapkamer, thans voorzien van twee éénpersoonsbedden. De eerste badkamer is op de begane grond en heeft een ligbad/douche, wastafelmeubel en vrijdragend toilet.
De bovenverdieping telt twee slaapkamers en een badkamer. Beide slaapkamers zijn geschikt voor twee personen en in één van de slaapkamers is ook opbergruimte. De badkamer heeft een dakkapel en hier is een douche, wastafelmeubel en vrijdragend toilet aanwezig.
Rondom de woning is een tuin met een grasveld, waar u in alle rust kunt ontspannen en waar de kinderen fijn kunnen spelen. Achter de woning is een terras en ook is er een houten tuinhuis op het perceel, handig voor uw (tuin)gereedschap. Parkeergelegenheid is er op eigen perceel.
Heeft u interesse in deze recreatiewoning? Neem dan gerust contact met ons op om een bezichtiging in te plannen! De oplevering (inclusief de inventaris, behoudens privézaken) zal in overleg geschieden, onder de lusten en lasten van de lopende toeristische verhuur.
Kenmerken
| Type | Vrijstaande woning |
| Bouwjaar | 1989 |
| Oplevering | in overleg |
| Perceeloppervlakte | 345m2 |
| Gebruiksopp. wonen | 81m2 |
| Externe bergruimte | 4m2 |
| Inhoud | 300m3 |
| Energielabel | B |
| Slaapkamers | 3 |
| Status | Beschikbaar |
| Prijs | € 449.000 k.k. |
| Woontype | Recreatie |
Foto's
Plattegrond
Interesse?
Neem dan contact op met
Kortekaas & Kooijman
makelaars en taxateurs
Interesse?
Neem dan contact op met Kortekaas & Kooijman makelaars en taxateurs.
Interesse?
Neem dan contact op met
Kortekaas & Kooijman
makelaars en taxateurs

